Přízemní modulární dům Herdla od polského výrobce PROSAT Home s užitnou plochou 55,3 m² je ideální volbou pro ty, kteří ocení ekologická řešení a vysoký komfort užívání.
Dům je postaven z překližkových panelů CLT. Pokročilá technologie CLT se vyznačuje vysokou pevností a přirozenou krásou surového materiálu.
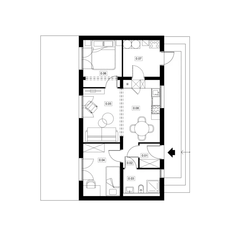
Model B1 Herdla byl navržen s ohledem na tříčlennou rodinu (2+1). Jedná se o minimalistický, avšak moderní dům s kompaktní formou, plochou střechou s atikami. Rozvrh byl navržen tak, aby maximalizoval užitný prostor domu.
Ložnice, dětský pokoj a kuchyně spojená s prostorným obývacím pokojem s výstupem na terasu (samostatnou pro všechny místnosti) zaručují soukromý a sdílený prostor pro obyvatele. Doplněním je kotelná s samostatným vchodem. Koupelna je umístěna hned vedle vstupní haly, což je docela praktické řešení.
Proces vytváření domu je pečlivě kontrolován v každém stadiu výroby. Domy PROSAT Home splňují principy udržitelného stavebnictví, a vysokou kvalitu provedení zajišťují komponenty předních evropských výrobců. Každý dům je vyráběn na individuální objednávku zákazníka.
| 0.01 | předsíň | 2.5 m² |
| 0.02 | chodba | 1.9 m² |
| 0.03 | koupelna | 4.2 m² |
| 0.04 | ložnice | 9.7 m² |
| 0.05 | obývací pokoj | 9.9 m² |
| 0.06 | ložnice | 8.9 m² |
| 0.07 | sklad / kotelna | 6.8 m² |
| 0.08 | kuchyně / jídelna | 11.5 m² |
| celkem: | 55.3 m² |


| CardLg43 [mm] | 5 610,000 |
| CardLg44 [mm] | 3 900,000 |
| CardLg42 [m] | 11,210 |
| Lg127 [kg] | 32000.000 |
| Lg2183 | 1 |
| Lg2184 | 1 |
| Lg900 [m²] | 55.31 |
| Lg2191 [m²] | 69.77 |
| Lg508 | Wood |
| Lg2192 | Aluminum |
| Lg2193 | C24 |
| Lg2194 [min.] | 30-60 |
| Lg2195 [W/mK] | 0.13 |
| Lg2198 | 1 |
ℹ️ Prohlížené recenze jsou moderovány. Neověřujeme, že pocházejí od zákazníků, kteří si produkt zakoupili.




