Modulhaus B1, CLT, ebenerdig, Nutzfläche 55.31 m2

Produktvideo

  Haus in 3 Monaten hergestellt und schlüsselfertig auf dem Grundstück montiert

B1

1 921,25 USD

Lieferung und Zahlung

Kosten: Individuelle Kalkulation
(Nach dem Eingang der Bestellung senden wir ein unverbindliches Angebot mit den Transportkosten.)

Zahlung: Überweisung

Gesamtwertung Gesamtwertung:

0
0/5 - 0 Bewertungen

Ansicht Bewertungen
0 1 2 3 40
0 1 2 3 00
0 1 2 0 10
0 1 0 1 20
0 0 1 2 30

 Add review Bewertungen anzeigen Bewertungen anzeigen

 

Erdgeschossiges modulares Haus Herdla des polnischen Herstellers PROSAT Home mit einer Nutzfläche von 55,3 m² ist die ideale Wahl für Menschen, die umweltfreundliche Lösungen und hohen Wohnkomfort schätzen.

Haus ist aus Kreuzverleimholzplatten gebaut. Die fortschrittliche CLT-Technologie zeichnet sich durch hohe Festigkeit und die natürliche Schönheit des Rohstoffs aus.

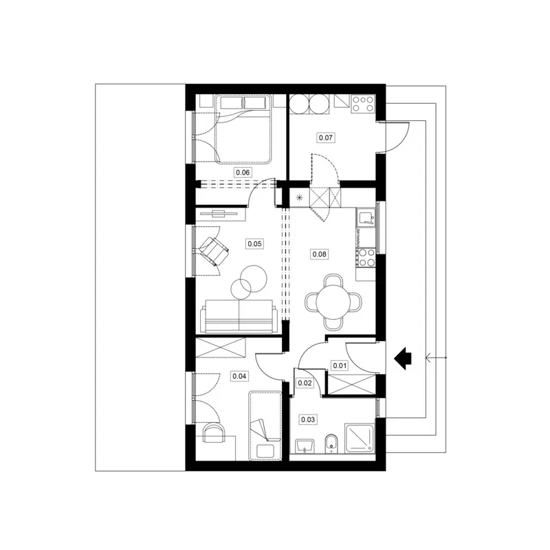
Modell B1 Herdla wurde für eine dreiköpfige Familie (2+1) entwickelt. Es handelt sich um ein minimalistisches, gleichzeitig modernes Haus mit einer kompakten Form und einem Flachdach mit Attiken. Die Anordnung wurde so gestaltet, dass der Wohnraum im Haus maximiert wird.

Schlafzimmer, Kinderzimmer und Küche, die mit dem geräumigen Wohnzimmer verbunden ist und Zugang zu einer Terrasse (für alle Räume separat) bietet, garantieren den privaten und gemeinsamen Raum der Bewohner. Eine Ergänzung ist der Heizraum mit einem separaten Eingang. Das Badezimmer befindet sich direkt neben der Eingangshalle, was eine ziemlich praktische Lösung ist.

Prozess der Hausproduktion wird in jedem Produktionsstadium sorgfältig kontrolliert. Die PROSAT Home-Häuser entsprechen den Grundsätzen des nachhaltigen Bauens, und die hohe Verarbeitungsqualität wird durch Komponenten führender europäischer Hersteller gewährleistet. Jedes Haus wird auf individuelle Bestellung des Kunden hergestellt.

Modulares Holzhaus HERDLA

Erdgeschoss

0.01Windfang2,5 m²
0.02Gang1,9 m²
0.03Badezimmer4,2 m²
0.04Schlafzimmer9,7 m²
0.05Wohnzimmer9,9 m²
0.06Schlafzimmer8,9 m²
0.07Hauswirtschaftsraum / Heizraum6,8 m²
0.08Küche / Esszimmer11,5 m²
insgesamt:55,3 m²

Virtueller Rundgang durch das modulare Holzhaus

Zusätzliche Optionen für das modulare Haus

Nullzustand Gebäude

  • Architektonisches Konzept
  • Technische Projektdokumentation
  • Montageanleitung
  • Gewährleistungsrichtlinien
  • Konstruktion der Module aus CLT/glulam
  • Holztreppen (in zweistöckigen Häusern)
  • Wände und Decken aus CLT in visueller Qualität
  • die keine weitere Fertigstellung des Hauses erfordern
  • Verbindungselemente und Bänder für die Montage der Module auf der Baustelle
  • Fenster- und Außentürenausbau des Hauses
  • Sicherung der Module während des Transports

Entwicklungshaus Ausstattung im Nullzustand des Hauses

  • Abschlussbeschichtungen auf dem Boden - Wärme- und Schalldämmung, trockener Estrich
  • Gipskartonverkleidungen an den Wänden und Decken an den im Projekt angegebenen Stellen - Aluminium-Unterkonstruktion, Wärmedämmung aus Mineralwolle, Gipskartonplatte ohne Spachtelung
  • Gipskartonverkleidungen im Badezimmer ohne Spachtelung
  • Vorwandinstallation für WC
  • Innere elektrische und telekommunikative Installationen
  • Smart Home System + Touchpanel-Set ohne Montage
  • Sicherungskasten
  • Innere Sanitärinstallationen
  • Mechanische Lüftung mit Wärmerückgewinnung
  • Luftaustauscher
  • Wasserbodenheizung
  • Ausstattung des Heizraums - Pufferspeichertank, hydraulischer Turm
  • Luft-Wasser-Wärmepumpe
  • Fliesen auf dem Boden im Heizraum

Schlüsselfertig Ausstattung im Entwicklungsstadium

  • Bodenpaneele und Fußleisten im gesamten Haus
  • Spachteln + Malen von Wänden und Decken aus Gipskarton
  • Komplettes Badezimmer - Abdichtung, Fliesen, weißer Einbau (WC, Waschbecken, Duschwanne, Wand und Tür zum Duschbereich, Duschset, Waschtischarmatur, Toilettenpapierhalter, WC-Bürste, 1x Handtuchhalter, elektrischer Heizkörper)
  • Fliesen zwischen den Schränken in der Küche
  • Feste Möbel (Schrank im Eingangsbereich, Schrank im Schlafzimmer, Küchenmöbel, Schrank unter dem Waschbecken im Badezimmer)
  • Spüle und Küchenarmatur
  • Steckdosen und Lichtschalter
  • Montage von Smart Home Touchpanels
  • Innere Beleuchtung (ohne Stehlampen und Schreibtischlampen)
  • Gepolsterte Paneele + dekorative Leisten hinter dem Bett im Schlafzimmer
  • Innentüren mit Wabenfüllung
  • Glasinnentüren (vom Windfang)

Zusätzliche Hinweise zu modularen Häusern

Zusätzliche Optionen

  • Transport der Module (individuelle Bewertung abhängig von der Entfernung)
  • Mieten eines Krans für 1 Tag (individuelle Bewertung)
  • Montage der Module auf der Baustelle
  • Anschluss der Installationen auf der Baustelle und Durchführung der Blitzschutzinstallation
  • Lieferung und Montage von Unterputz-Außenrollläden
  • Ausführung der Fassade mit Material
  • Lieferung und Montage von Außenbeleuchtungseinrichtungen
  • Dachdeckung mit Material
  • Einbau von eingebauten Haushaltsgeräten
  • Fotovoltaik (Carport, Wechselrichter, Energiespeicher, Elektroauto-Ladestation)

Außerhalb des Umfangs

  • Grundstückskauf
  • Grundstücksmakulierung
  • Grundstücksentwicklung
  • Anschlüsse und Netzwerke auf dem Grundstück erstellen
  • Erdarbeiten
  • Fundamentbau
  • Aufbau einer Terrasse/Pergola auf Bodenniveau
  • Aufbau einer Pergola auf der Dachterrasse
  • Lieferung von beweglichen Möbeln
  • Kosten für Projekte, Genehmigungen, Entscheidungen usw., die nicht oben aufgeführt sind
Visualisierungen der schlüsselfertigen Einrichtung eines CLT-Hauses

ℹ️ Bewertungen werden moderiert. Wir überprüfen nicht, ob sie von Kunden stammen, die das Produkt gekauft haben.

 Kundenbewertung von Modulhaus B1, CLT, ebenerdig, Nutzfläche 55.31 m2 (0)

5 andere Produkte in der gleichen Kategorie:

5 andere Produkte in der gleichen Kategorie: