To elementy zaprojektowane w celu ochrony zasobnika przed korozją. Anoda magnezowa działa jako ochrona katodowa, "poświęcając" się i zapobiegając rdzewieniu wnętrza zbiornika. Anoda tytanowa jest bardziej trwałym, opcjonalnym rozwiązaniem, które zwiększa żywotność urządzenia.
Jest to specjalna powłoka nakładana na wewnętrzną powierzchnię zbiornika, a następnie utrwalana w bardzo wysokiej temperaturze (850°C). Dzięki temu powierzchnia staje się odporna na wodę i korozję, zapewniając higieniczne warunki przechowywania wody oraz długowieczność urządzenia.
Izolacja zasobnika została wykonana z wysokiej jakości materiałów, takich jak:
Obudowa zasobnika została wykonana z trwałej i estetycznej tkaniny typu *skay*, która nadaje urządzeniu elegancki wygląd i pasuje do różnorodnych wnętrz.
| Symbol | 15.200SE | 15.250SE | 15.300SE | 15.350SE | 15.400SE | 15.500SE | 15.800SE | 15.1000SE | ||
| Pojemność rzeczywista | L | 204 | 249 | 303 | 324 | 401 | 494 | 826 | 951 | |
| Maksymalna temp. i ciśnienie robocze zbiornika | 95 °C / 6 Bar | |||||||||
| Waga | kg | 66 | 79 | 87 | 96 | 105 | 110 | 175 | 211 | |
| Anoda magnezowa | typ | AM40x400 | 2x AM40x400 | |||||||
| Opcjonalna anoda tytanowa | typ | AT300EZ | AT500EZ | AT2000EZ | ||||||
| Opcjonalna grzałka elektryczna | typ | G.K.2,0/G.K.3,0/G.K.4,5/G.K.6,0/G.K.9,0/G.K.12,0 | ||||||||
| Klasa energetyczna | B | C | ||||||||

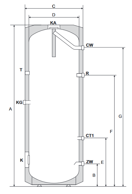
| A | B | C | D | E | F | G | |
| 15.200SE | 1260 | 185 | 600 | 500 | 450 | 783 | 1035 |
| 15.250SE | 1488 | 185 | 600 | 500 | 475 | 892 | 1210 |
| 15.300SE | 1510 | 205 | 650 | 550 | 510 | 920 | 1265 |
| 15.350SE | 1600 | 205 | 650 | 550 | 510 | 920 | 1355 |
| 15.400SE | 1760 | 220 | 650 | 550 | 580 | 1135 | 1527 |
| 15.500SE | 1720 | 215 | 750 | 650 | 575 | 1090 | 1470 |
| 15.800SE | 1865 | 240 | 1000 | 800 | 666 | 1161 | 1550 |
| 15.1000SE | 2115 | 240 | 1000 | 800 | 730 | 1366 | 1800 |
| 200-400L | 500L | 800-1000L | ||
| CW | Wylot ciepłej wody | G 3/4" W/F | G 1" W/F | G 1" W/F |
| CT1 | Tuleja na czujnik temperatury | Rura 3/8" | Rura 3/8" | Rura 3/8" |
| R | Króciec recyrkulacji | G 3/4" W/F | G 1" W/F | G 1" W/F |
| ZW | Wlot zimnej wody | G 3/4" W/F | G 1" W/F | G 1" W/F |
| T | Termometr | |||
| K | Przyłącz kołnierzowy | DN 120 | DN 120 | DN 200 |
| KA | Przyłącz kołnierzowy z anodą | |||
| KG | Przyłącz grzałki | G 6/4" W/F | G 6/4" W/F | G 6/4" W/F |
| Montaż | Pionowy, Podłogowy, Wewnętrzny |
| Max. Ciśnienie robocze [ bar ] | 6 |
| Izolacja | Pianka poliuretanowa |
| Wężownica | NIE |
ℹ️ Wyświetlane opinie są moderowane. Nie weryfikujemy, czy pochodzą od klientów, którzy kupili dany produkt.