⛔ Produkt nicht verfügbar
Achtung: Letzte verfügbare Teile!
Lieferdatum
Heizkessel Moderator Multi Vento ist ein modernes und ökologisches Niedertemperaturwasser Zentralheizungsgerät, entwickelt, um Biomasse erneuerbare Festbrennstoffe zu verbrennen. AZSB Satz (automatisierter Satz für Verbrennung von Biomasse) mit einem SMOK Gusseisen-Brenner wird zum Brennen von erneuerbaren Kraftstoffen wie Holz und Pflanzentyp (P45 Typ Hackschnitzel, Pellets, Sägespäne, Rinde, Torf, Briketts mit Schüttdichte um 450 kg / m3) Eingesetz, der in einer völlig automatischer Weise mit Benutzer Abwesenheit arbeitet. Inklusiver gusseiserne Feuerrost ermöglicht einen traditionellen Notfall-Verbrennungsmodus (manuell - Hand beschickt) im Falle eines Stromausfalls mit Kraftstoffarten wie Steinkohle (Nuss Granulation) und abgelagertem Holz, Brennholz, kleineren Holzscheitern zu befeuern, Heizung Ausrüstung besteht aus einem Kessel (Wärmetauscher), Aufgabevorrichtung für den Festbrennstoff, Brenner mit einem Gusseisenkopf (der den beweglichen Rost zu Verbrennung von Biomasse Kraftstoff besitzt) und Kraftstoffvorratsbehälter. Das einzigartige Design bietet Benutzer wartungsfreie, bequeme und effiziente Arbeit. Hoher Wirkungsgrad (86 %) und geringe Rauchemissionen bieten eine effiziente und umweltfreundliche Lösung für Kunden, die einen kostengünstigen Zugang zu Holz oder Holzabfälle (Tischler, Holzschuppen, Holzlager, Holzmöbelfabriken) haben. Moderator Vento Multi ist eine moderne Technologie, die die Heiz- und Sparanforderungen erfüllen und erhebliche Auswirkungen auf die ökologischen Heizungslösungen herbeischaffen.
Moderator Kessel Multi Vento verfügt über einen Schaltschrank und Steuerung von PLUM (ecoMAX 800) mit einen komfortablen Bedienungspanel mit Display neben den ein traditioneller Thermomanometer platziert ist. Die Steuerung implementiert eine Technologie mit intelligenter und unabhängiger Selbstkontrolle die als Fuzzylogik bekannt ist. Der Schaltschrank des Heizkessels kann durch den Anschluss von: Servomotor für ein Mischventil, Warmwasserpumpe, Zentralheizungspumpe, Mischertemperaturfühler, Außentemperaturfühler, Rücklaufwasser Temperaturfühler, Raumthermostat (PLUM ecoSTER 200) Ausgebaut werden (die als optionale zusätzliche Ausstattung kommen).



| Durchmesser des Abgasfuchses [ mm ] | 160 |
| Durchmesser des Abgasfuchses [ mm ] | 160 |
| Durchmesser des Abgasfuchses [ mm ] | 180 |
| Durchmesser des Abgasfuchses [ mm ] | 160 |
| Durchmesser des Abgasfuchses [ mm ] | 160 |
| Durchmesser des Abgasfuchses [ mm ] | 180 |
| Durchmesser des Abgasfuchses [ mm ] | 160 |
| Durchmesser des Abgasfuchses [ mm ] | 160 |
| Durchmesser des Abgasfuchses [ mm ] | 180 |
| Durchmesser des Abgasfuchses [ mm ] | 160 |
| Durchmesser des Abgasfuchses [ mm ] | 160 |
| Durchmesser des Abgasfuchses [ mm ] | 180 |
| Durchmesser des Abgasfuchses [ mm ] | 160 |
| Durchmesser des Abgasfuchses [ mm ] | 160 |
| Durchmesser des Abgasfuchses [ mm ] | 180 |
| Durchmesser des Abgasfuchses [ mm ] | 180 |
| Durchmesser des Abgasfuchses [ mm ] | 220 |
| Durchmesser des Abgasfuchses [ mm ] | 160 |
| Durchmesser des Abgasfuchses [ mm ] | 160 |
| Durchmesser des Abgasfuchses [ mm ] | 180 |
| Durchmesser des Abgasfuchses [ mm ] | 180 |
| Durchmesser des Abgasfuchses [ mm ] | 220 |
| Durchmesser des Abgasfuchses [ mm ] | 160 |
| Durchmesser des Abgasfuchses [ mm ] | 160 |
| Durchmesser des Abgasfuchses [ mm ] | 180 |
| Durchmesser des Abgasfuchses [ mm ] | 180 |
| Durchmesser des Abgasfuchses [ mm ] | 220 |
| Durchmesser des Abgasfuchses [ mm ] | 160 |
| Durchmesser des Abgasfuchses [ mm ] | 160 |
| Durchmesser des Abgasfuchses [ mm ] | 180 |
| Durchmesser des Abgasfuchses [ mm ] | 180 |
| Durchmesser des Abgasfuchses [ mm ] | 220 |
| Wirkungsgrad [ % ] | 86 |
| Durchmesser des Vorlauf und Rücklaufstutzen [ Zoll ] | 6⁄4'' |
| Max. Betriebstemperatur [ °C ] | 80 |
| Min. Betriebstemperatur [ °C ] | 55 |
| Max. Arbeitsdruck [ bar ] | 1,500 |
| Min. Schornsteinhöhe [ m ] | 8 |
| Netzspannung [ V ] | 230 |
| Brennstoff | Rinde, Pellets, Hackschnitzel |
ℹ️ Bewertungen werden moderiert. Wir überprüfen nicht, ob sie von Kunden stammen, die das Produkt gekauft haben.






























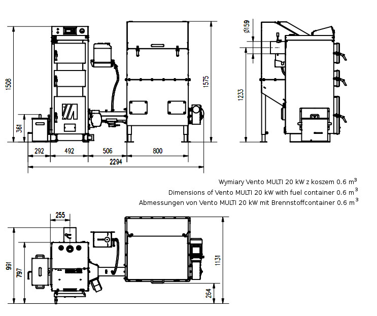
Enthält die technischen Details der Installation und den Betrieb des MODERATOR VENTO Multi 15-50 kW Kessel